Наружная реклама
Реклама на радио
Реклама на телевидении
Реклама в интернете и печатных СМИ
Реклама в помещениях
Реклама на/в транспорте
Изготовление рекламы
в Сыктывкаре
О НАС
Фасад Медиа Групп – рекламно-производственная компания в Сыктывкаре и Республике Коми. Мы оказываем полный спектр услуг по согласованию и установке конструкций наружной рекламы в Сыктывкаре:
Рекламно-производственная компания «Фасад Медиа Групп» предлагает гибкие условия и приемлемые цены на услуги по согласованию документации на установку конструкций наружной рекламы. Для законной установки конструкций наружной рекламы в Сыктывкаре обращайтесь по тел.: 8 800 201-23-74 или оставьте заявку на сайте. Согласование наружной рекламы «под ключ» гарантируем!
Конструкции наружной рекламы в Сыктывкаре пользуются большим спросом среди представителей сыктывкарского бизнеса. Востребованность данного вида рекламы объясняется целым рядом факторов:
Как можно видеть, наружная реклама в Сыктывкаре является эффективным средством для популяризации бренда компании, сообщения об открытии магазина или офиса, увеличения потока клиентов и повышения процента продаж. Многие столичные клиенты нашей компании используют конструкции наружной рекламы в Сыктывкаре для размещения рекламы на постоянной основе. Однако перед установкой любой конструкции наружной рекламы необходимо получить разрешение на ее установку и эксплуатацию в органах государственной или муниципальной власти.
Рекламно-производственная компания «Фасад Медиа Групп» оказывает услуги по подготовке технической документации и получению разрешения на установку конструкций наружной рекламы на профессиональной основе. Выбирая компанию «Фасад Медиа Групп», вы получаете высокий уровень сервиса и разумные цены. Обращайтесь, мы будем рады сотрудничеству.

Планируете согласование и установку наружной рекламы в Сыктывкаре? – обращайтесь по телефону: 8 800 201-23-74 или оставьте заявку на сайте. Согласование и установку наружной рекламы «под ключ» гарантируем!
Наружная реклама в Сыктывкаре – это текстовая и/или графическая информация, отображаемая на материальных носителях (баннерах, постерах, плакатах), которые размещаются на специализированных конструкциях в целях предоставления потенциальным клиентам информации о продаваемых товарах и оказываемых услугах.
Материальными носителями наружной рекламы в Сыктывкаре являются баннеры, постеры, плакаты, листовки и др. В последнее время в Сыктывкаре все чаще встречается диджитал-реклама или цифровая (наружная светодиодная) реклама. Конструкции наружной рекламы – это объекты городской инфраструктуры, предназначенные для размещения баннеров, постеров, плакатов и т.д.
Рекламные конструкции устанавливаются на улицах, дорогах, перекрестках, крышах зданий и сооружений, возле объектов транспортной инфраструктуры, а также на АЗС. Наружная реклама в Сыктывкаре относится к так называемой ООН-рекламе: Out Of Home – реклама вне помещений, представляющая собой развитый, популярный канал распространения и получения информации о товарах и услугах.
Примеры наружной рекламы в Сыктывкаре представлены на фото:
Примеры наружной рекламы в Сыктывкаре представлены на фото:

Реклама на афишах: пример на фото выше

Реклама на брандмауэрах: пример на фото выше

Реклама на дорожных знаках: пример на фото выше

Реклама на остановках: пример на фото выше

Реклама на пилларах: пример на фото выше
Реклама на ситибордах: пример на фото выше

Реклама на сити-форматах: пример на фото выше

Реклама на тумбах: пример на фото выше
Виды наружной рекламы в Сыктывкаре
Согласно типу рекламной конструкци выделяют различные виды наружной рекламы в Сыктывкаре. Традиционно к конструкциям наружной рекламы относятся:
Вместе с тем, это не все конструкции наружной рекламы. Каждый год появляются новые и новые площадки для размещения рекламы на улицах города.
С развитием цифровой экономики увеличивается число объектов наружной световой или светодиодной рекламы. Пожалуй, самым распространенным и зрелищным видом светодиодной рекламы являются медиафасады. К эффективным видам наружной рекламы в Сыктывкаре, способствующим продвижению товаров и услуг, относятся также диджитал сити-форматы, цифровые билборды и цифровые суперсайты.

Для получения максимального эффекта от проведения рекламной кампании в Сыктывкаре необходимо точно определить целевую аудиторию, на которую ориентирован рекламируемый товар или услуга. Точечно воздействуя на заранее определенную публику, можно достичь высокой эффективности при небольшом рекламном бюджете. В случае, если рекламодатель планирует охватить большую целевую аудиторию, ему необходимо арендовать большое количество рекламных площадей. Конструкции наружной рекламы для решения этого вопроса подойдут как нельзя лучше. Наружная реклама ориентирована на широкий круг потребителей:
Благодаря хорошей заметности конструкций наружной рекламы, а также их большой распространенности, число потенциальных клиентов и покупателей, которые смогут увидеть рекламу, увеличивается многократно.

Конструкции наружной рекламы в Сыктывкаре являются очень популярными площадками для размещения информационных сообщений рекламного содержания. Рекламодатели предпочитают размещать рекламу именно на уличных конструкциях поскольку высокая эффективность данной рекламу оправдывает вложенные в нее средства. Почему эффективность наружной рекламы в Сыктывкаре так высока? Эффективность конструкций наружной рекламы обусловлена целым рядом факторов:
Благодаря наружной рекламе можно за небольшие деньги значительно повысить информированность потенциальных клиентов или покупателей о рекламируемом товаре или услуге. Широкая распространенность конструкций наружной рекламы в Сыктывкаре и массовый охват аудитории способствуют значительному увеличению потока клиентов и повышению процента продаж.

Наружная реклама в Сыктывкаре обладает большим количеством плюсов. Итак, что вы сможете получить, разместив рекламу на уличных конструкциях в Сыктывкаре? Вот некоторые плюсы наружной рекламы в Сыктывкаре:
Многие именитые бренды для своих рекламных кампаний выбирают именно наружную реклама, так как этот вид рекламы является самым распространенным и эффективным. Реклама на улицах города – это выгодно!
| Вид услуги | Сроки оказания услуг | Стоимость | Оплата | Налог | Отчет |
|---|

Проведение рекламной кампании начинается с определения ее целей и задач. Формирование целей и постановка задач рекламной кампании зиждутся на исследовании конъюнктуры рынка, определении и изучении конкурентов, их достоинств и недостатков, выявлении рисков, способов их хеджирования.
Одним из важных составляющих любой рекламной кампании, влияющих на верную постановку целей, является формирование рекламного бюджета. Стоимость рекламной кампании прямо пропорциональна стоимости аренды конструкций наружной рекламы: чем дороже рекламная конструкция, тем больше средств придется вложить в рекламную кампанию. Безусловно, рекламодатели стараются затратить как можно меньше средств при проведении рекламной кампании. Наружная реклама как нельзя лучше помогает справиться с этой задачей.
Одним из главных преимуществ наружной рекламы является низкая стоимость изготовления и размещения рекламных материалов. В пересчете на число контактов потенциальных клиентов с рекламным объявлением цена наружной рекламы невысока. Разумные цены позволяют рекламодателям арендовать больше конструкций для проведения успешных рекламных кампаний. Дополнительно нужно отметить, что всегда есть рекламные конструкции, которые остались невостребованными. Такие конструкции наружной рекламы сдаются в аренду на порядок ниже их первоначальной стоимости.
Рекламодатели, запуская рекламную кампанию, зачастую ставят перед собой несколько целей. Однако главной целью любой рекламной кампании является повышение процента продаж за счет увеличения потока клиентов. Достичь эту цель возможно при массовом охвате потенциальных клиентов. Добиться массового охвата публики можно при размещении рекламных материалов на нескольких различных конструкциях одновременно. В данном случае действует правило: чем больше рекламных конструкций наружной рекламы задействовано, тем выше шанс, что рекламная кампания будет иметь успех.
На улицах города установлено большое количество конструкций наружной рекламы: медиафасады, видеоэкраны, щиты, сити-форматы, скроллеры и многие другие. Большой выбор рекламных конструкций – это преимущество наружной рекламы:
Большой выбор рекламных поверхностей положительно сказывается на эффективности наружной рекламы.
В России действует Федеральный Закон «О рекламе», который предъявляет особые требования к рекламным объявлениям на телевидении, радио, сети Интернет и других СМИ. Свой перечень требований установлен и для наружной рекламы. Общие требования к рекламе в России установлены в ст.5 указанного нормативно-правового акта. Вместе с тем, необходимо отметить, что требования к наружной рекламе не так строги, в отличии от требований к рекламе в иных источниках информации. Следовательно, размещая рекламное объявление на конструкциях наружной рекламы, рекламодатель потратит меньше сил и средств, а риск нарушить закон не так велик.
Обращаем внимание, что юристы рекламного агентства «Фасад Медиа Групп» проверяют каждое рекламное объявление на соответствие требованиям законодательства России. Следовательно, риск того, что государство запретит рекламу или предъявит требования о ее демонтаже отсутствует. Более того, наружную рекламу не требуется согласовывать с городской администрацией, ГИБДД и другими контролирующими органами, и структурами. Ввиду того, что к наружной рекламе предъявляются минимальные требования со стороны законодательства, ее размещение осуществляется быстро и с наименьшими затратами.
Порядок размещения наружной рекламы регулируется, в частности, ст.19 ФЗ «О рекламе». Знание данных требований необходимо, поскольку это поможет не допустить ошибок при создании дизайна рекламного объявления, а также способствует оперативному монтажу рекламы. Каждому рекламодателю важно, чтобы с момента решения о размещении рекламы до фактической демонстрации рекламного объявления прошел минимальный промежуток времени.
Бывают случаи, когда рекламодателю требуется разместить большое количество объявлений в экстренном порядке. Наружная реклама с задачей массового и оперативного размещения рекламных объявлений справляется отлично. Порой печать и монтаж наружной рекламы осуществляется в один день. Оперативное размещение наружной рекламы является ее несомненным достоинством.
Быстрое размещение наружной рекламы возможно не только благодаря соблюдению требований законодательства, но и качественным услугам рекламного агентства, большого количества конструкций наружной рекламы, низкой стоимости аренды и монтажа, минимальным и лояльным требованиям, предъявляемым к наружной рекламы со стороны государства. Особо необходимо отметить, что рекламные агентства предоставляют рекламодателям большие скидки в зависимости от объема арендуемых конструкций наружной рекламы.
Существуют различные виды наружной рекламы. Рекламный мир не стоит на месте. Стремительными темпами развивается светодиодная реклама, яркими представителями которой являются медиафасады, светодиодные сити-борды, цифровые билборды и светодиодные суперсайты.
Каждая из конструкций наружной рекламы обладает своими характеристиками, параметрами и отличается степенью воздействия на потенциальную аудиторию. От правильного выбора конструкции наружной рекламы зависит ни много ни мало успех рекламной кампании и, как следствие, процветание вашего бизнеса. Возникает вопрос: «Как правильно выбрать конструкцию наружной рекламы?». Ответ можно дать следующий:
1) исходите из запланированного бюджета;
2) соотнесите возможности той или иной конструкции с целями рекламной кампании;
3) определите район размещения рекламы. В целях проведения эффективной рекламной кампании необходимо правильно выбрать район размещения рекламы. В случае, когда вы планируете провести разовую рекламную акцию, лучше выбрать тот район, в котором находится ваш магазин или офис. Если вы планируете провести рекламную кампанию, охватывающую весь город, советуем выбирать районы с плотной застройкой, обилием магазинов, торговых центров, школ, поликлиник, университетов и т.д. В этом случае вашу рекламу увидят большое количество людей.
Существуют первостепенные задачи, которые должны быть решены до начала проведения рекламной кампании. Одной из главных является определение сроков рекламной кампании. Важно знать, когда начинать рекламировать товар или услугу и когда заканчивать. Необходимо отметить, что определение сроков начала и окончания рекламной капании не всегда зависит только от заказчика (рекламодателя).
Зачастую важную роль в этом вопросе играет и подрядчик или исполнитель. Следовательно, чтобы уложиться в намеченные временные рамки, вам необходимо согласовать с рекламным агентством (исполнителем) порядок и время совершения следующих действий: заключение договора, изготовление дизайна рекламного объявления, печать и монтаж рекламы на конструкцию, предоставление фотоотчета.
Обращаем внимание, что сроки печати и монтажа рекламного объявления варьируются в зависимости от вида наружной рекламы и количества конструкций. Правильное определение срока рекламной кампании приведет вас в конечном итоге к успеху. Таким образом, начало и окончание рекламной кампании должно быть четко определено по времени. Важным элементом в определении сроков проведения рекламной кампании является проверка рекламного макета на соответствие требованиям ФЗ «О рекламе». Советуем заранее отправить макет рекламного постера или плаката на проверку юристам рекламного агентства.
Проведение рекламной кампании или акции дело не простое, требующее подчас, креативного подхода к делу, достаточно свободного времени и недюжинных организаторских способностей. Для того, чтобы получить ожидаемый эффект от рекламы, необходимо учесть и проработать ряд важных моментов:
Однако существуют факторы, оказывающие подчас латентное (скрытое) влияние на успех рекламной кампании. Рекламодатель должен знать о них и уметь нивелировать (устранять) их негативное воздействие. Следовательно, специалисты рекламного агентства Фасад Медиа Групп советуют, выбирая рекламную поверхность, обращайте внимание на внешние факторы: наличие пешеходных и транспортных маршрутов, устойчивость рекламной конструкции, хорошую заметность баннера, отсутствие загораживающих элементов (деревья, высокие кустарники, здания, большегрузные машины и т.д.), защищенность от вандалов.
Обратите внимание на то, как будет смотреться ваша реклама в разное время суток, а также в хорошую и плохую погоду. Данные обстоятельства необходимо учитывать до монтажа рекламного полотна на конструкцию. Безусловно, если вас что-либо не устроит, всегда можно произвести дополнительный монтаж, однако это приведет к дополнительным затратам.
Любая рекламная кампания проводится в несколько этапов:
Каждый этап рекламной кампании характеризуется присущими только ему особенностями и требует к себе отдельного подхода и внимания. Одним из таких является этап предоставления рекламодателю отчета о размещении рекламного объявления. Любое размещение рекламы должно заканчиваться фото-или видеосъемкой с целю предоставления рекламодателю информации о размещении его рекламы на выбранной рекламной конструкции.
Зачастую рекламодатель не имеет возможности приехать на место размещения рекламы для проверки соблюдения сроков и полноты выполнения работ рекламным агентством. Для этого ответственное рекламное агентство направляет заказчику фото- или видеосъемку факта размещения рекламы. Специалисты рекламного агентства Фасад Медиа Групп советуют рекламодателям просить фото – или видеоотчет о размещении рекламы. Не обязательно иметь фотоотчет в 100% объеме. Однако на нем должен четко просматриваться баннер или постер с вашей рекламой, тип конструкции наружной рекламы, место ее расположения.
Обращаем внимание, что отчет полезен и для исполнителя (рекламного агентства), поскольку обязывает его контролировать рекламные плакаты и баннеры на их целостность. Таким образом, рекламное агентство Фасад Медиа Групп советует своим клиентам просить фото – или видеоотчет о размещении рекламы.
Наружная реклама в Сыктывкаре – это текстовая и/или графическая информация, отображаемая на материальных носителях (баннерах, постерах, плакатах), которые размещаются на специализированных конструкциях в целях предоставления потенциальным клиентам информации о продаваемых товарах и оказываемых услугах.
Материальными носителями наружной рекламы в Сыктывкаре являются баннеры, постеры, плакаты, листовки и др. В последнее время в Сыктывкаре все чаще встречается диджитал-реклама или цифровая (наружная светодиодная) реклама. Конструкции наружной рекламы – это объекты городской инфраструктуры, предназначенные для размещения баннеров, постеров, плакатов и т.д.
Рекламные конструкции устанавливаются на улицах, дорогах, перекрестках, крышах зданий и сооружений, возле объектов транспортной инфраструктуры, а также на АЗС. Наружная реклама в Сыктывкаре относится к так называемой ООН-рекламе: Out Of Home – реклама вне помещений, представляющая собой развитый, популярный канал распространения и получения информации о товарах и услугах.
Примеры наружной рекламы в Сыктывкаре представлены на фото:
| Реклама на афишах: пример |
![]() |
| Реклама на брандмауэрах: пример |
![]() |
| Реклама на дорожных знаках: пример |
![]() |
| Реклама на остановках: пример |
![]() |
| Реклама на пилларах: пример |
![]() |
| Реклама на ситибордах: пример |
![]() |
| Реклама на сити-форматах: пример |
![]() |
| Реклама на тумбах: пример |
![]() |
Согласно типу рекламной конструкци выделяют различные виды наружной рекламы в Сыктывкаре. Традиционно к конструкциям наружной рекламы относятся:
Вместе с тем, это не все конструкции наружной рекламы. Каждый год появляются новые и новые площадки для размещения рекламы на улицах города.
С развитием цифровой экономики увеличивается число объектов наружной световой или светодиодной рекламы. Пожалуй, самым распространенным и зрелищным видом светодиодной рекламы являются медиафасады. К эффективным видам наружной рекламы в Сыктывкаре, способствующим продвижению товаров и услуг, относятся также диджитал сити-форматы, цифровые билборды и цифровые суперсайты.

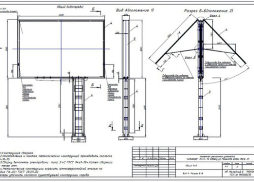
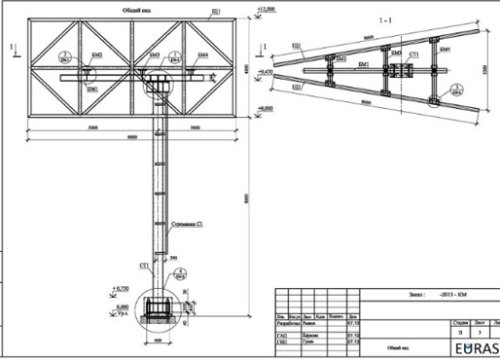
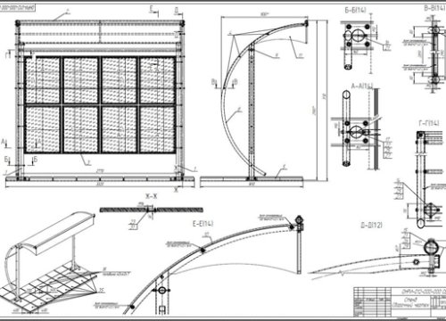
Что такое проектирование конструкций наружной рекламы?
Под проектированием конструкций наружной рекламы принято понимать процесс определения архитектуры, компонентов, интерфейсов и других характеристик рекламных конструкций. Результатом проектирования конструкций наружной рекламы является технический проект – целостная совокупность моделей, свойств или характеристик, описанных в форме, пригодной для реализации рекламной конструкции.
Проектирование конструкций наружной рекламы представляет собой целенаправленную деятельность, которая обладает последовательностью процедур, ведущих к достижению эффективных решений. В настоящее время предложен ряд структур и алгоритмов проектирования конструкций наружной рекламы, совпадающих в основных чертах и различающихся только в содержании или названии отдельных этапов.
Методы проектирования конструкций наружной рекламы
К методам проектирования конструкций наружной рекламы относятся следующие:
1) Эвристические методы:
2) Экспериментальные методы:
3) Формализованные методы
Каждый из указанных методов должен использоваться в системе остальных подходов для того, чтобы процесс проектирования смог завершится в срок и с высокой степенью результативности.
Этапы проектирования конструкций наружной рекламы
Выше указывалось, что проектирование конструкций наружной рекламы – это процесс, состоящий из целого ряда логически последовательных действий, которые представляют собой систему и направлены на определенный результат, а именно: подготовка технического проекта рекламной конструкции.
Процесс проектирования конструкций наружной рекламы разбивается на несколько этапов. К основным этапам проектирования относятся:
Процесс проектирования конструкций наружной рекламы, зачастую, заканчивается получением разрешения на установку спроектированной рекламной конструкции. При этом технический проект направляется в государственные и/или муниципальные органы, чтобы получить разрешение на изготовление и установку рекламной конструкции по заявленным характеристикам и на указанном в техническом проекте месте.
Как видим, процесс проектирования конструкций наружной рекламы является многоэтапным и требует достаточной компетенции. Для того, чтобы данный процесс завершился с надлежащим эффектом, необходимо обращаться к специалистам. Только таким образом можно исключить ошибки и неточности в проектировании конструкций наружной рекламы.

Стоимость проектирования конструкций наружной рекламы
Зачастую клиенты нашей компании задают вопрос о том, сколько стоит проектирование рекламных конструкций. Отвечая на данный вопрос, можем привести следующие цифры:
Обращаем внимание, что указанные суммы не являются публичной офертой и рассчитываются в каждом случае индивидуально. Процесс проектирования рекламных конструкций является уникальным и не рутинным мероприятием, которое требует индивидуального подхода. Поэтому, для получения более точной информации о том, сколько стоит спроектировать конструкции наружной рекламы, необходимо обращаться к специалистам нашей компании. Будем рады сотрудничеству.
Уважаемые друзья! За согласованием конструкций наружной рекламы обращайтесь в рекламно-производственную компанию «Фасад Медиа Групп». Высокий уровень сервиса и низкие цены гарантируем. Мы все сделаем сами: дизайн и эскиз макета, подготовка документов, согласование и монтаж. Отчёт предоставляем бесплатно и в 100% объеме.
Обращайтесь 88002012374@mail.ru или 8 800 201-23-74
Что такое согласование рекламной конструкции?
Согласование рекламы – это получение разрешения в компетентных органах государственной власти или органах местного самоуправления на установку и эксплуатацию рекламной конструкции согласно утвержденного технического проекта. Процесс согласования рекламной конструкции регламентирован различными законодательными актами, в том числе некоторыми положениями ФЗ «О рекламе».
Согласно ст. 3 данного Федерального закона реклама – информация, распространенная любым способом, в любой форме и с использованием любых средств, адресованная неопределенному кругу лиц и направленная на привлечение внимания к объекту рекламирования, формирование или поддержание интереса к нему и его продвижение на рынке. Следовательно, любая конструкция, которая относится к рекламной, требует получения разрешения на ее установку и эксплуатацию.
Для чего нужно согласовывать рекламу в органах государственной или муниципальной власти?
В ст.5 ФЗ «О рекламе» приведены общие требования к рекламе, среди которых особо отмечено, что реклама должна быть добросовестной и достоверной. Недобросовестная реклама и недостоверная реклама не допускаются. Органы государственной власти, выдавая разрешение на установку и эксплуатацию рекламной конструкции, должны удостовериться, что конструкция содержит добросовестную рекламу и достоверную информацию. Более того, особое внимание уделяется тому, чтобы реклама:
Таким образом, при выдаче разрешения на установку и эксплуатацию рекламы, органы государственной власти дают положительную оценку рекламной конструкции, соглашаясь с тем, что данная реклама не противоречит требования законодательных актов РФ.
Какие конструкции нужно согласовывать в органах государственной власти?
Как указано в ст.9 ФЗ «О рекламе», установка и эксплуатация рекламной конструкции допускаются при наличии разрешения на установку и эксплуатацию рекламной конструкции (далее также – разрешение), выдаваемого на основании заявления собственника или иного указанного в частях 5, 6, 7 данной статьи законного владельца соответствующего недвижимого имущества либо владельца рекламной конструкции органом местного самоуправления муниципального района или органом местного самоуправления городского округа, на территориях которых предполагается осуществлять установку и эксплуатацию рекламной конструкции.
Таким образом, любая рекламная конструкция перед ее установкой и эксплуатацией на территории муниципального района или местного самоуправления, должна пройти процесс согласования в органах муниципальной власти или в органах государственной власти. Возникает закономерный вопрос: необходимо ли получать разрешение на установку и эксплуатацию конструкций наружной рекламы? На данный вопрос необходимо ответить утвердительно, сказав, что перед установкой рекламных конструкций, относящихся к наружной рекламе, необходимо согласовать проектную документацию данных конструкций в органе муниципальной власти (администрации города), поскольку данная рекламная конструкция устанавливается на территории муниципального района или местного самоуправления.

Какова процедура согласования наружной рекламы в гос. органах?
Зачастую клиенты нашей компании спрашивают: каким образом проходит процесс согласования наружной рекламы в органах государственной власти? Отвечая на данный вопрос, необходимо отметить, чтобы получить разрешение на установку и эксплуатацию конструкций наружной рекламы, необходимо:
Как видим, процесс получения разрешения на установку и изготовление конструкций наружной рекламы не является сложным. Вместе с тем, процесс подготовки документов лучше доверить профессионалам, чтобы получить положительное решение органа власти по вопросу согласования наружной рекламы.

Что делать в случае отказа госоргана в выдаче разрешения на установку и эксплуатацию конструкций наружной рекламы?
Нередки случаи, когда органы государственной или муниципальной власти отказывают в выдаче разрешения на установку и эксплуатацию конструкций наружной рекламы. Возникает вопрос, что делать в этом случае? Наш ответ: необходимо уточнить все замечания, выяснить ошибки, которые были допущены при подготовке проектной документации, выяснить детально, в чем были допущены неточности, повлиявшие на отрицательный исход процесса получения разрешения на установку и эксплуатацию рекламной конструкции. Далее необходимо исправить все допущенные ошибки и подать документы повторно. При этом необходимо помнить, что повторная подача заявления на согласование требует повторной уплаты государственной пошлины. Это один из важных моментов, о котором иногда забывают. Вместе с тем, если не предоставить квитанцию об уплате госпошлины, вам могут отказать по формальным основаниям. Будьте внимательны!
Сколько стоит согласование наружной рекламы (получение разрешения) в органах власти?
Приводим примерную стоимость согласования конструкций наружной рекламы в органах власти:
| Вид услуги | Сроки оказания услуг | Стоимость | Оплата | Налог | Отчет |
| Выезд на место | от 1 рабочего дня | от 2500 руб. | Безнал | УСН | Предоставляется |
| Проведение замеров | от 1 рабочего дня | от 7900 руб. | Безнал | УСН | Предоставляется |
| Разработка дизайн-проекта | от 3 рабочих дней | от 6800 руб. | Безнал | УСН | Предоставляется |
| Подготовка (разработка) технической документации | от 3 рабочих дней | от 9000 руб. | Безнал | УСН | Предоставляется |
| Направление (подача) технической документации в госорганы | от 1 рабочего дня | от 2000 руб. | Безнал | УСН | Предоставляется |
| Внесение изменений в техническую документацию | от 3 рабочих дней | от 4900 руб. | Безнал | УСН | Предоставляется |
| Повторное направление (подача) технической документации в госорганы | от 1 рабочего дня | от 2000 руб. | Безнал | УСН | Предоставляется |
| Согласование архитектурной концепции | от 30 рабочих дней | от 20000 руб. | Безнал | УСН | Предоставляется |
*Стоимость не является публичной офертой
Уважаемые друзья! За согласованием конструкций наружной рекламы обращайтесь в рекламно-производственную компанию «Фасад Медиа Групп». Высокий уровень сервиса и низкие цены гарантируем. Мы все сделаем сами: дизайн и эскиз макета, подготовка документов, согласование и монтаж. Отчёт предоставляем бесплатно и в 100% объеме.
Обращайтесь 88002012374@mail.ru или 8 800 201-23-74
Сроки выполнения работ по согласованию наружной рекламы в Сыктывкаре
Срок подготовки технической документации и согласования конструкций наружной рекламы является принципиальным моментом для предпринимателей, поскольку чем быстрее наружная релкама начнет работать, тем быстрее можно будет сообщить покупателям, клиентам, посетителям об открытии магазина, офиса, продажи товара или оказания услуги. Зачастую наши клиенты спрашивают: «Каков минимальный срок изготовления технического проекта и согласования конструкций наружной рекламы?». Отвечая на данный вопрос, можно отметить, что минимальный срок выполнения работ по разработке технического проекта и согласования наружной релкамы в Сыктывкаре составляет от 5 до 30 рабочих дней. Что касается максимального срока выполнения работ, то он рассчитывается индивидуально исходя из вида и размеров конструкции наружной рекламы, срочности заказа, сезонности, а также наличия свободных трудовых ресурсов.
Разработку технической документации и согласования наружной рекламы можно разделить на несколько этапов:
Уважаемые друзья! За согласованием конструкций наружной рекламы обращайтесь в рекламно-производственную компанию «Фасад Медиа Групп». Высокий уровень сервиса и низкие цены гарантируем. Мы все сделаем сами: дизайн и эскиз макета, подготовка документов, согласование и монтаж. Отчёт предоставляем бесплатно и в 100% объеме.
Обращайтесь 88002012374@mail.ru или 8 800 201-23-74
Рекламно-производственная компания «Фасад Медиа Групп» предлагает гибкие условия согласования конструкций наружной рекламы в Сыктывкаре и Республике Коми, выгодные цены.
Примеры наших работ по согласованию конструкций наружной рекламы представлены ниже:
Рекламные буквы:
![]() |
![]() |
![]() |
Световые короба:
![]() |
![]() |
![]() |
Входные групп:
![]() |
![]() |
![]() |
Щиты 3х6:
![]() |
![]() |
![]() |
Тумбы и пилларсы:
![]() |
![]() |
![]() |
Уважаемые друзья! За согласованием конструкций наружной рекламы обращайтесь в рекламно-производственную компанию «Фасад Медиа Групп». Высокий уровень сервиса и низкие цены гарантируем. Мы все сделаем сами: дизайн и эскиз макета, подготовка документов, согласование и монтаж. Отчёт предоставляем бесплатно и в 100% объеме.
Обращайтесь 88002012374@mail.ru или 8 800 201-23-74
Принимаем заявку
Позвоните или оставьте
заявку на сайте
Предлагаем услуги
Анализируем проблему
и предлагаем решение
Заключаем договор
Приходим к соглашению и подписываем документы
Оказываем услуги
Выполняем обязательства в полном объеме и в срок
Многие рекламные конструкции находятся в управлении нашего рекламного агентства. Это дает нам возможность устанавливать разумные цены без лишних комиссий и условий.
Наружная реклама
Реклама на радио
Реклама на телевидении
Реклама в интернете и печатных СМИ
Реклама на/в транспорте
Реклама в помещениях
Изготовление рекламы
Фасад Медиа Групп – это высокотехнологичное рекламное агентство, талантливый и креативный коллектив которого воплощает в жизнь сложные, смелые и интересные рекламные проекты.
На сайте используются файлы Cookie и Рекомендательные технологии. Продолжив работу с сайтом, Вы соглашаетесь с Политикой обработки персональных данных и правилами пользования сайтом